본문
설치사례
특허

- [특허 제10-1218623호] 폐수처리장치의 수류 공간 흐름을 이용한 수직유도판형 가압부상조
- [특허 제10-1455180호] 수류 분산형 가압부상조
- [특허 제10-1789994호] 수처리를 위한 급속 공기용해 및 미세기포 발생장치
- [특허 제10-1841958호] 수처리를 위한 경사형 급속 공기용해 및 미세기포 발생장치
- [특허 제10-2049073호] 고효율 유수분리기와 가압부상조를 포함하는 폐수처리장치
- [특허 제10-2085905호] 와류판을 이용한 폐수처리용 가압부상조
- [특허 제10-2256365호] 폐수처리용 부상조의 투체인 시스템을 이용한 스키머 장치
- [특허 제10-2256379호] 부상조의 스키머 장치용 스크레퍼 구조
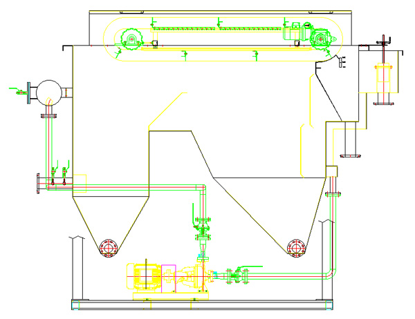
구조와 원리

TJD TYPE일반농도 제거용

| 형식 (Model) |
용량 (m3/hr) |
크기(mm) | FREE SURFACE M2 |
전력량(kW) | 비고 | ||
| 폭(W) | 길이(L) | 높이(H) | |||||
| TJD-01 | 1~2 | 500 | 1500 | 1600 | 0.6 | 1.47 | 두크펌프 2SET |
| TJD-02 | 3 | 750 | 1500 | 1600 | 0.9 | 1.47 | |
| TJD-03 | 7 | 1000 | 2000 | 2000 | 1.6 | 2.57 | |
| TJD-04 | 9 | 1000 | 2500 | 2100 | 2.1 | 3.37 | 신신펌프 2SET |
| TJD-05 | 15 | 1200 | 3020 | 2300 | 3.1 | 5.87 | |
| TJD-06 | 25 | 1500 | 3020 | 2800 | 3.9 | 5.87 | |
특징
- 수류분산패널을 설치하여 유량 균등분배가능
- 수류압을 보다 안정되게 효과적으로 조절가능
- 공기주입조절 장치가 있어 유입수의 변화에 대처가 용이함
- 미세플럭까지 부상분리가 가능함
- 처리효율 및 처리수질이 높다
- 제작 및 유지관리비 절감
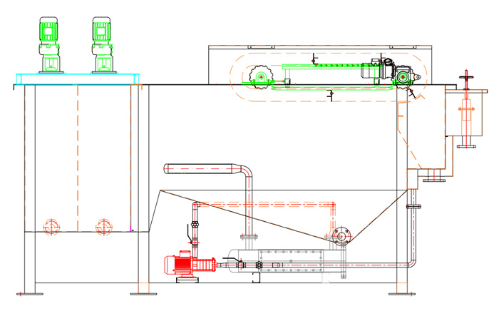
TJD TYPE일체형 가압부상조
협소한 공간의 사용 가능한 응집반응 가압부상조 일체형 모델
현장의 SS농도와 폐수의 특성 및 현장 여건을 파악하여 맞춤 제작 가능

※ 검수서류, 시운전, 운반 및 설치 제외, 필요시 추가 요청, 재구매시 10% 할인
※ Body Size는 당사 Maker Standard 기준.
※ Body Size는 당사 Maker Standard 기준.
특징
- 응집조, 반응조, 가압부상조의 일체형으로 협소한 공간 전체 설비 설치 가능
- 응집반응조부터 가압부상조 까지 바로 연결되어 있어 운송중에 미세플럭 깨질 위험이 없음.
- 가압순환펌프, 공기용해장치의 바로 옆 배치로 마찰손실수두 없음.
- 현장의 유입수, 유량, 설치공간에 따라 응집반응조의 SIZE 결정으로 표준 SIZE가 없음.








